
CASTELLO SVEVO ANGIOINO
- Qui puoi:
Da Vedere
- Posizione
Largo Castello, Bisceglie
Informazioni
Descrizione
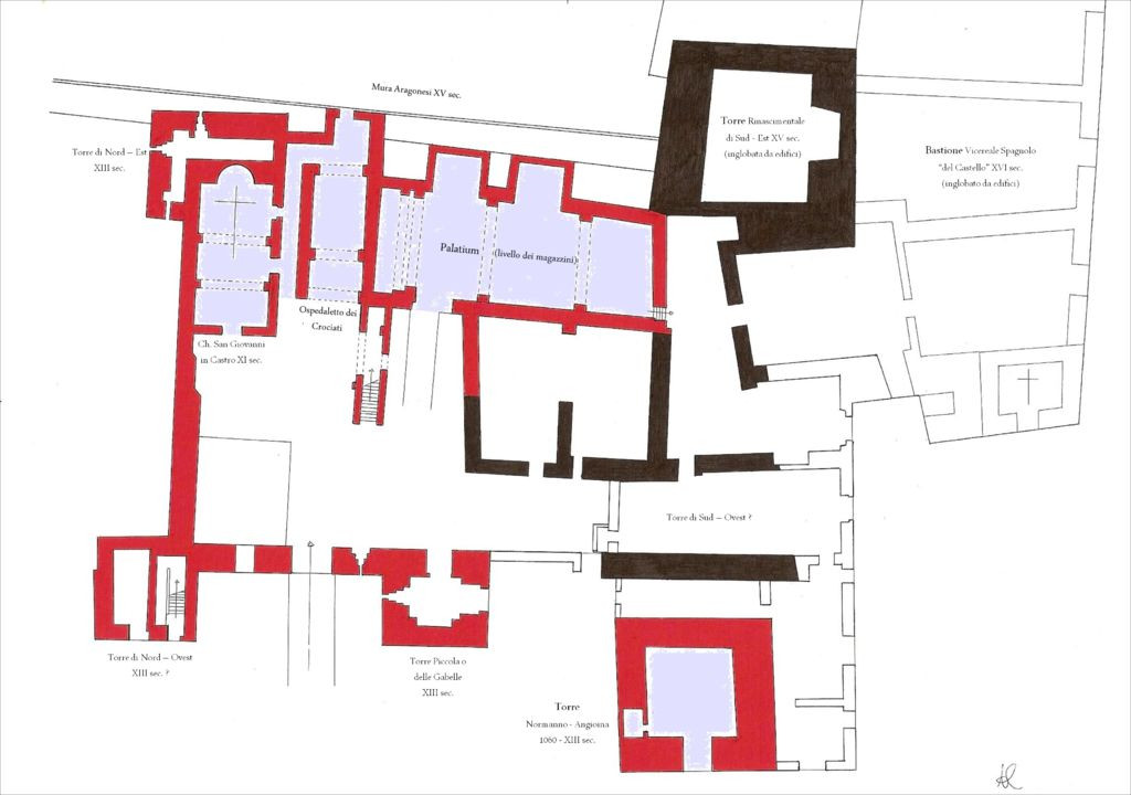
Della fortificazione castellare di origine Normanno-Sveva, con quattro torri quadre angolari, rimangono ben visibili solo le due torri: quella più alta, nota come "Torre Maestra", è attribuita al conte normanno Pietro I (circa 1060); quella più piccola è invece attribuita agli Svevi. Di non agevole identificazione le altre parti, inglobate in costruzioni successive.
Il Castello, ampliato in età angioina e modificato in età aragonese, perdette la sua importanza alla fine del secolo XVI, perche poco adatto alle nuove tecniche di guerra con armi da fuoco.
Dopo un lungo periodo di abbandono, alla fine degli anni 50, la Soprintendenza ai beni culturali iniziò il primo restauro della torre più piccola mentre il comune di Bisceglie lo restiuì ai cittadini nel suo antico splendore ultimando il restauro della Torre Maestra, oggi museo, della chiesetta interna e dell'ospedaletto dei crociati attualmente accessibili a visitatori e turisti.
Curiosità:
-
- Ben nota agli abitanti della città è la sirena che ogni giorno, alle 12, risuona dall'alta torre normanna, e che durante il secondo conflitto mondiale veniva utilizzata come allarme antiaereo.
-
- Nelle vicinanze del castello si svolge il noto mercato ittico cittadino, alla cui estremità si può ammirare la Grande Quercia, simbolo della città di Bisceglie.


